Zum Hauptinhalt springen

1210, Quartier "An der Schanze" - BPL BD - SMART + Superförderung
Bauträger: NEUE HEIMAT Gemeinnützige Wohnungs- und Siedlungsgesellschaft Ges.m.b.H.

  • Planung: Delugan Meissl AA / Rüdiger Lainer+Partner / Expanded Design
  • Baubeginn: Herbst 2024
  • Bezugstermin: Frühjahr 2027

(Alle Angaben vorbehaltlich Änderungen)

Nähere Informationen zum Projekt:

  • Anzahl der Wohnungen: 53 geförderte Mietwohnungen
  • Förderung: nach § 12 WWFSG (Miete) - SMART
  • Kosten pro m² durchschnittlich:
  • Eigenmittel: € 60,00
  • monatl. Belastung: ab € 9,59
  • Durchschnittliche Kosten KFZ-Abstellplatz:
  • Eigenmittel: € 0,00
  • monatl. Belastung: € 111,00
  •  
2587_2VISUALISIERUNG2.jpg

Mittels zweistufigem Bauträgerwettbewerb wurden zehn Bearbeitungsgebiete zur Realisierung empfohlen und bilden gemeinsam das neue Stadtquartier „An der Schanze“. Insgesamt sollen ca. 1.500 Wohnungen, ein Student*innenwohnheim, Grätzlcafés, bauplatzübergreifende Gemeinschaftseinrichtungen sowie ein Kindergarten auf dem Areal errichtet werden. Der Fokus liegt insbesondere auf leistarem Wohnraum mit hoher Wohnqualität sowie der Unterstützung von Alleinerziehenden.


Hinweis zu den Kosten:
Infos: Voraussetzungen für SMART-Wohnungen

Bei diesen Wohnungen ist zusätzlich eine Superförderung möglich!

WOHNEN

  • Wohnhaus:
    - das Neubauprojekt besteht aus fünf Baukörpern und wird von den Bauträgern EBG und Neue Heimat auf Bauplatz BD realisiert
    - Insgesamt umfasst das Neubauprojekt 316 geförderte Mietwohnungen, wovon 35 Wohnungen mit Superförderung und 108 Wohneinheiten mit SMART + Superförderung realisiert werden.
    - insgesamt 26 Geschäftsflächen geplant
    - Erschließung über sechs Stiegenhäuser
    - die vertikale Gebäudebegrünung trägt zur Verbesserung des Mikroklimas bei
    - Nahversorger im Erdgeschoß geplant
    - Massivbauweise
    - Ökologisches Bauproduktemanagement gemäß BauXund
    - Kooperation mit dem Verein Juno geplant
    - bauplatzübergreifendes Mobilitätskonzept (Leihräder, Fahrradboxen, Reparaturstelle für Fahrräder, Aufladestation für E-Autos, etc.)

  • Wohnungsangebot:
    - 53 SMART-Wohnungen mit Superförderung
    - Laminatböden in den Wohnräumen
    - Ausstattung mit 3-scheibenverglasten Holz-Alu bzw. Kunststoff-Alufenstern
    - Wohnungseingangstüren in WK3-Ausführung
    - Erdgeschoßwohnungen sind mit einbruchhemmenden Beschlägen bzw. sperrbaren Griffoliven ausgestattet
    - alle Wohnungen verfügen über eine private Freifläche als Erweiterung des Wohnraumes

  • Private Freiräume:
    - Balkone
    - Loggien
    - Terrassen

  • Allgemeine Freiflächen und Gemeinschaftseinrichtungen:
    - zwei Waschküchen
    - vier Gemeinschaftsräume
    - multifunktionaler Gemeinschaftsraum mit Indoor-Spielplatz (sozial- und freizeitpädagogische Angebote sowie Aktivitäten durch die Kinderfreunde) und Quartiersküche
    - ein Kletterraum
    - großzügiger Kinder- und Jugendspielplatz
    - Kleinkinderspielplatz
    - Klettergarten (Boulder- und Kletterpark) bei der Hochgarage
    - Sitzmöglichkeiten und Spielangebot im Freiraum
    - mehrere Sitzmöglichkeiten sowie Pflanzenbeete/Hochbeete für Urban Gardening im begrünten Innenhof vorhanden
    - naturnaher Spielbereich mit Spielhügel, Spielskulptur sowie weiteren Spielpunkten
    - eine gemütliche Gemeinschaftsterrasse mit Pergola lädt zum gemeinsamen Verweilen ein
    - belebter Quartiersplatz als Ort der Begegnung
    - Besiedlungsmanagement als „Community Coaching“ geplant (Formung von Aktivgruppen)

  • Abstellmöglichkeiten:
    - zwölf Fahrrad- und Kinderwagenabstellräume
    - insgesamt ca. 750 Fahrradabstellplätze am Bauplatz
    - ca. 170 PKW-Stellplätze in einer quartiersübergreifenden Hochgarage

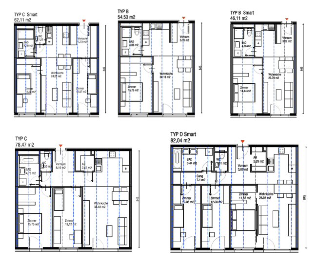
BEISPIELGRUNDRISSE

- kompakte und flächeneffiziente Grundrisse, leicht anpassbar auf geänderte Lebensumstände
- Grundrisslösungen auf Bedürfnisse von Alleinerziehenden angepasst
- alltagstauglich und mit Normmöbel möblierbar

LAGE

  • Das Wohnprojekt entsteht angrenzend an den 22. Bezirk, in unmittelbarer Nähe zum Zentrum Kagran sowie dem Erholungsgebiet Obere Alte Donau

  • Öffentliche Verkehrsanbindung:
    - Buslinie 27A in Richtung Kagran (U1) bzw. Hermann-Gebauer-Straße
    - Straßenbahnlinie 25, 26 und zukünftig Linie 27 verkehren zwischen Floridsdorf und Donaustadt
    - Straßenbahn- sowie Busstation direkt vor dem neuen Areal geplant

  • Lageplan

INFRASTRUKTUR

  • Nahbereich:
    - Donauzentrum
    - Gewerbepark Stadlau
    - Shopping Center Nord
    - Klinik Floridsdorf
    - Donauspital
    - div. Ärzt*innen/Apotheken

  • Schulen:
    - Volksschule, Prandaugasse 5
    - Volksschule, Donaufelderstraße 77
    - Volksschule „Campus Plus“, Attemsgasse 22
    - Neue Mittelschule, Kinzerplatz 9
    - Neue Mittelschule, Anton-Sattler-Gasse 93
    - Polytechnische Schule, 22., Wintzingerodestraße 1-3
    - Gymnasium, Bernoullistraße 3
    - Humanberufliche Schule, Firnbergplatz 1
    - Veterinärmedizinische Universität, Veterinärplatz 1

  • Kindergärten:
    - 6-gruppiger Kindergarten am Nachbarbauplatz G2 geplant
    - privater Kindergarten „Kindercompany“, Prandaugasse 3
    - Kindergarten der Stadt Wien, Attemsgasse 22
    - Kindergarten der Stadt Wien, Fultonstraße 5-11

  • Freizeit:
    - Erste Bank Arena
    - Kino- und Entertainmentcenter Donauplex
    - Erholungsgebiete Alte Donau, Neue Donau, Donaupark
    - Floridsdorfer Wasserpark
    - Kombibad Donaustadt
    - Strandbad Alte Donau
    - Floridsdorfer Bad - Hallenbad
Zurück zum Seitenanfang