Zum Hauptinhalt springen

1190, Muthgasse 50
Bauträger: WBV-GPA Wohnbauvereinigung für Privatangestellte Gemeinnützige Gesellschaft mit beschränkter Haftung

  • Planung: HNP Architects ZT GmbH/Architekten Gerner und Partner ZT GmbH
  • Baubeginn: Herbst 2024
  • Bezugstermin: Frühjahr 2027

(Alle Angaben vorbehaltlich Änderungen)

Nähere Informationen zum Projekt:

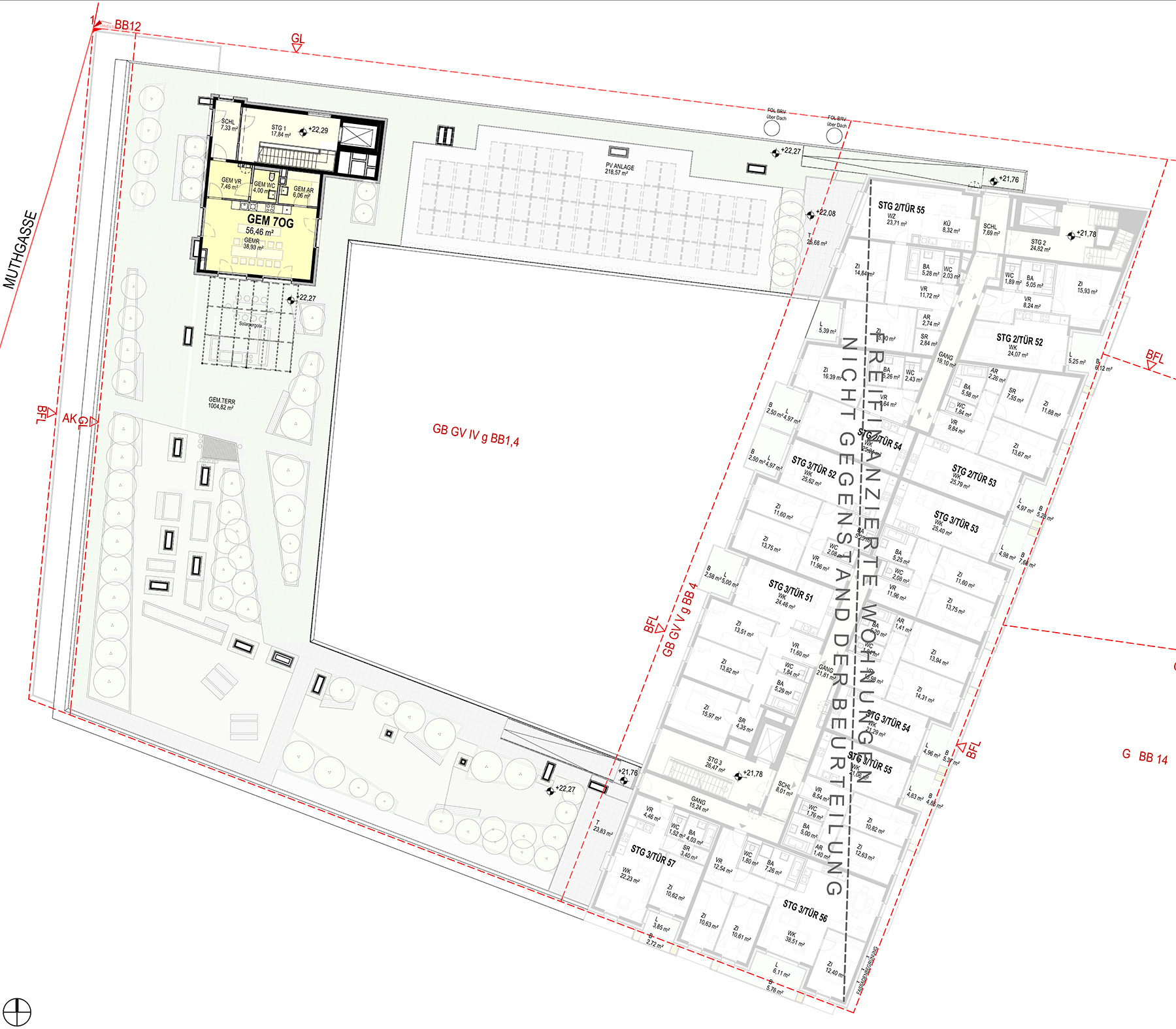
  • Anzahl der Wohnungen: 79 geförderte Mietwohnungen
  • Förderung: nach § 12 WWFSG (Miete)
  • Kosten pro m² durchschnittlich:
  • Eigenmittel: € 499,90
  • monatl. Belastung: ab € 10,97
  • Durchschnittliche Kosten KFZ-Abstellplatz:
  • Eigenmittel: € 0,00
  • monatl. Belastung: € 137,72
  •  
2750_1_Projektansicht1.jpg

WOHNEN

  • Wohnhaus:
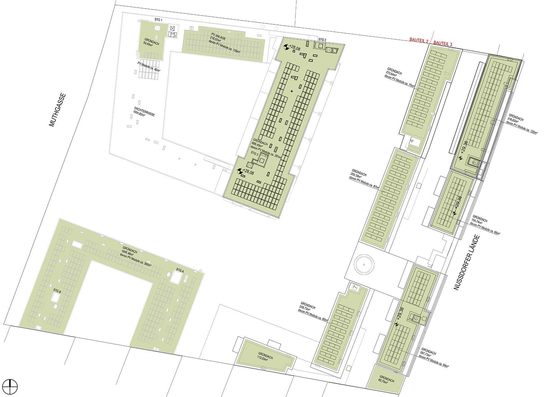
    - Das Neubauprojekt vom Bauträger WBV-GPA in unmittelbarer Nähe zur U-Bahn-Station U4 „Heiligenstadt“ (ca. 5 min Fußweg) besteht aus drei kompakten Baukörpern in Massivbauweise mit einer Sockelzone und bis zu 8 darüber liegenden Stockwerken.
    - Der gesamte Bauplatz besteht aus drei Bauteilen. Im Bauteil 1 befindet sich ein Student*innenheim und freifinanzierte Gewerbeflächen (nähere Informationen hierzu sind nur über den Bauträger möglich). Die Bauteile 2 und 3 bestehen größtenteils aus geförderten Wohnungen. Insgesamt werden 238 geförderte Mietwohnungen errichtet, davon werden 119 Wohnungen nach dem SMART-Wohnbauprogramm mit Superförderung umgesetzt.
    - Nutzungsmix mit Geschäften und Lokalen verbessert die Nahversorgung und trägt zu einem lebendigen Straßenbild bei
    - ein Kindergarten befindet sich beim Bauteil 2 im Erdgeschoß
    - begrünte Dachflächen mit Pergola Konstruktionen für Urban-Gardening und Generationentreffen
    - Photovoltaikanlage zur regenerativen Stromerzeugung
    - Wärmeversorgung über Wärmepumpen mit Geothermie (Tiefensonden) und Fernwärmeanschluss
    - klimaneutrale Temperierung im Sommer über Bauteilaktivierung
    - Fassadenbegrünung und Regenwassermanagement sorgen dafür, die Folgen des Klimawandels erträglicher zu gestalten
    - Wohnungen und Baukörper sind so angeordnet, dass die Tageslichtversorgung optimal genutzt wird
    - Car-Sharing und Bike-Sharing Angebot sowie öffentliche E-Ladestationen stehen im Quartier zur Verfügung
    - Besiedlungsmanagement während und nach der Besiedlungsphase durch die Hausverwaltung

  • Wohnungsangebot:
    - 79 geförderte Mietwohnungen
    - 2-, 3-, 4- und 5-Zimmer-Wohnungen
    - Laminatböden in den Wohnräumen
    - Wohnungseingangstüren der Sicherheitsklasse WK 3
    - Pilzverriegelungen und Sperroliven als einbruchshemmende Maßnahmen bei EG-Wohnungen
    - alle Wohnungen verfügen über eine private Freifläche

  • Private Freiräume:
    - Balkone
    - Loggien

  • Allgemeine Freiflächen und Gemeinschaftseinrichtungen:
    - direkt an den Wohnhof angrenzend befindet sich ein Gemeinschaftsraum mit Waschküche
    - vom Wohnhof einsehbarer Kleinkinderspielplatz mit Sandspiel sowie Kinder- und Jugendspielplatz mit Wasser-Bodendüsen
    - weiterer Gemeinschaftsraum mit vorgelagerter Gemeinschaftsterrasse auf dem Dachgeschoß des Bauteils 2 für Urban-Gardening mit Ausblick auf den Kahlenberg
    - Flächen mit schattigen begrünten Inseln zum Aufenthalt inkl. Sitzmöglichkeiten für die Hausgemeinschaft im gesamten Areal
    - eine Mehrzweckhalle mit Gymnastikraum befindet sich im Bauteil 3 und kann idealerweise für sportliche Aktivitäten sowie für Feste und Veranstaltungen genützt werden
    - „Grüne Gasse“ mit Grinzing-Feeling beim Bauteil 3 mit zwei Gemeinschaftsterrassen – der Hofterrasse und der Donauterrasse hin zum Donaukanal als informelle Treffpunkte mit Nachbar*innen
    - Holzdecks in der „Grünen Gasse“ laden zum Sonnenbaden oder auch zu „Yoga mit Ausblick“ ein

  • Abstellmöglichkeiten:
    - Fahrrad- und Kinderwagenabstellräume sind im Erdgeschoß situiert
    - ca. 890 Fahrradabstellplätze befinden sich in versperrbaren Abstellräumen
    - ca. 120 zusätzliche Fahrradabstellplätze im Freibereich des Quartiers
    - insgesamt ca. 270 PKW-Tiefgaragen-Stellplätze, davon ca. 70 für E-Mobilität voll ausgestattet

LAGE

  • -direkt an der Nußdorfer Lände, in unmittelbarer Nähe zur U4-Endstation Heiligenstadt
    - über die Heiligenstädter Brücke Anschluss an die A22 – Donauufer Autobahn und B14 Richtung Klosterneuburg

  • Öffentliche Verkehrsanbindung:
    Verkehrsknoten Heiligenstadt
    - U4 Station Heiligenstadt
    - Schnellbahnen S40 und S45
    - Regionalzüge REX4, R40 und REX41
    - Straßenbahnlinie D
    - Buslinien 5B, 10A, 11A, 38A, 39A,

  • Lageplan

INFRASTRUKTUR

  • Nahbereich:
    - Einkaufszentrum Q19
    - Geschäfte des täglichen Bedarfs
    - Nussdorfer Markt, Sonnberg Markt
    - div. Ärzt*innen/Apotheke

  • Schulen:
    - Wirtschaftskundliches Realgymnasium, Hofzeile 22
    - Gymnasium und Realgymnasium 19, Billrothstraße 26-30
    - Bundeslehranstalt für wirtschaftliche Berufe, Straßergasse 37-39
    - Neue Mittelschule und Volksschule, Oskar-Spiel-Gasse 3
    - Ganztagsvolksschule, Robert-Blum-Gasse 2
    - Volksschule, Grinzinger Straße 88

  • Kindergärten:
    - öffentlicher Kindergarten, Halteraugasse 8
    - öffentlicher Kindergarten, Heiligenstädter Straße 82
    - öffentlicher Kindergarten, Leystraße 2-4
    - Kindergarten der Österreichischen Kinderfreunde, Greinergasse 5

  • Freizeit:
    - Donaukanalpromenade
    - Heiligenstädter Park
    - Wertheimsteinpark
    - Augarten
    - Sportplatz Hohe Warte
    - Döblinger Bad
    - Erholungsgebiete Alte Donau und Neue Donau
    - Grinzinger Heurigen
    - Stadtwanderweg 1
    - Kino- und Entertainmentcenter Millennium City
Zurück zum Seitenanfang