Zum Hauptinhalt springen

1220, Steinspornweg 33 - SMART + Superförderung
Bauträger: MIGRA Gemeinnützige Wohnungsges.m.b.H.

  • Planung: Hohensinn Architektur ZT GmbH
  • Baubeginn: Sommer 2026
  • Bezugstermin: Anfang 2028

(Alle Angaben vorbehaltlich Änderungen)

Nähere Informationen zum Projekt:

  • Anzahl der Wohnungen: 9 geförderte Mietwohnungen
  • Förderung: nach § 12 WWFSG (Miete) - SMART
  • Kosten pro m² durchschnittlich:
  • Eigenmittel: € 60,00
  • monatl. Belastung: ab € 8,27
  • Durchschnittliche Kosten KFZ-Abstellplatz:
  • Eigenmittel: € 0,00
  • monatl. Belastung: € 84,00
  •  
2650_1Projektbild_10_Steinsporn.jpg

Beim „WohnBAUMProgramm“ handelt es sich in einer ersten Phase um sechs Bauplätze, welche insgesamt rund 150 Wohneinheiten in Floridsdorf und Donaustadt umfassen. Der Schwerpunkt dieser Projekte liegt in der Verwendung einer Holz- bzw. Holz-Hybrid-Bauweise, wobei alle Wohnprojekte mit nachhaltigen Energiesystemen versorgt werden. Zusätzlich werden weitere ökologische Faktoren wie Ressourceneffizienz, Recyclingfähigkeit, Anpassungsfähigkeit oder Kreislaufwirtschaft bereits in der Planungsphase mitgedacht.

Hinweis zu den Kosten:
Infos: Voraussetzungen für SMART-Wohnungen

Bei diesen Wohnungen ist eine Superförderung möglich!

WOHNEN

  • Wohnhaus:
    - das Neubauprojekt entsteht direkt am Schillerwasser und teilt sich auf in fünf Punkthäuser und vier kleineren Gemeinschaftshäusern. Es umfasst insgesamt 15 Wohneinheiten, wovon 9 nach dem SMART-Wohnbauprogramm mit Superförderung realisiert werden
    - Durch seine einzigartige Lage zwischen Stadt und Nationalpark ist der Steinspornweg perfekt für
    naturnahes Wohnen am Wasser. Die kleinen Einzelhäuser sind um Dorfplätze gruppiert und widmen
    sich gemeinschaftlichem Wohnen, Arbeiten und Gartln
    - Sharing-Lasterräder stehen zur Verfügung zum einfachen Transport
    - zentrale Wärmepumpe mittels thermischer Grundwassernutzung für nachhaltige Raumwärme und Warmwasser
    - Wärmeabgabe über Bauteilaktivierung ermöglicht behagliches Wohnklima
    - Kühlung im Sommer ebenfalls über Bauteilaktivierung („Free Cooling“)
    - Photovoltaikanlage zur regenerativen Stromerzeugung

  • Wohnungsangebot:
    - 9 SMART-Wohnungen mit Superförderung
    - 1-, 2- und 4-Zimmer-Wohnungen
    - Holzparkettböden in den Wohnräumen
    - alle Wohnungen können quergelüftet werden
    - außenliegender Sonnenschutz kann nachgerüstet werden

  • Private Freiräume:
    - Terrassen
    - Eigengärten

  • Allgemeine Freiflächen und Gemeinschaftseinrichtungen:
    Der südliche Teil mit mietbaren Beeten, zugeordneten Nebengebäuden, Marktplatz und Spielwiese
    ist öffentlicher angelegt. Sowohl Bewohner*innen, als auch Tagesgäste aus anderen Migra Standorten finden hier eine perfekte Infrastruktur vor, um einen Tag zwischen Beeten und Wasser zu verbringen
    - umfassende Möglichkeiten dank Werkstätten, Gartenküche, großzügige „Urban Gardening“-Flächen, etc.
    - Zentraler Marktplatz mit Kinderspielplatz, Festwiese und Öko-Wiese als Zentrum der Anlage
    - weitere Grünflächen wie Kräutergärten und Gartenfelder machen dieses Projekt zum Naturparadies

  • Abstellmöglichkeiten:
    - ca. 60 Fahrradabstellplätze am Bauplatz; mietbare Spinte für Radabstellplätze
    - zehn PKW-Stellplätze

BEISPIELGRUNDRISSE

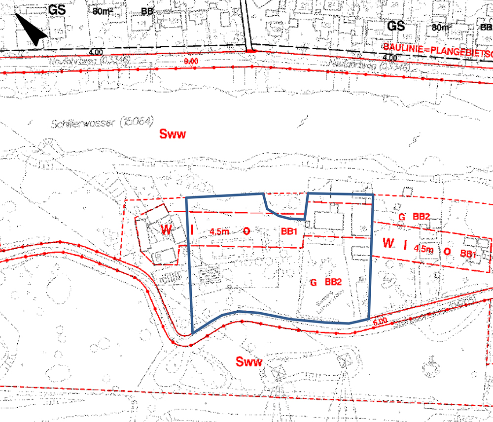
LAGE

  • Das Wohnprojekt entsteht direkt am Schllerwasser; in unmittelbarer Nähe zum Erhoungsgebiet Mühlwasser und Lobau.

  • Öffentliche Verkehrsanbindung:
    - Buslinie 93A Richtung Kagran bzw. Aspernstraße, Buslinie 92B Richtung Kaisermühlen bzw. Ölhafen, Buslinie 95A Richtung Großer Biberhaufen bzw. Aspern Nord
    - U1 Station Kaisermühlen VIC erreichbar mit dem Bus 92A und U2 Station Aspernstraße erreichbar mit der Buslinie 93A

    Anbindung an die A22 bzw. A23 über die Raffineriestraße

  • Lageplan

INFRASTRUKTUR

  • Nahbereich:
    - Schillerwasser
    - Kraftwerk Donaustadt
    - Klinik Donaustadt

  • Schulen:
    - öffentliche Volksschule, Asperner Heldenplatz 3
    - öffentliche Volksschule, Oberdorfstraße 2
    - öffentliche Volksschule, Wulzendorfstraße 1
    - Mittelschule, Eibengasse 58
    - Allgemeine höhere Schule, Heustadelgasse 4

  • Kindergärten:
    - Kindergarten der Stadt Wien, Hammerfestweg 3
    - Kindergarten der Stadt Wien, Bergengasse 6
    - Kindergarten der Stadt Wien, Hardeggasse 69

  • Freizeit:
    - Erholungsgebiet Mühlwasser & Schillerwasser
    - Nationalpark Donau-Auen und Lobau
    - Erholungsgebiete Alte Donau, Neue Donau, Prater
    - Vienna Watersports Arena, Steinspornbrücke
    - Wassersportzentrum, Steinspornbrücke
    - Dechantlacke & Panozzalacke
Zurück zum Seitenanfang