Zum Hauptinhalt springen

1230, Meischlgasse - BAG 3 - Superförderung
Bauträger: NEUES LEBEN Gemeinnützige Bau-, Wohn- und Siedlungsgenossenschaft reg. Gen.m.b.H.

  • Planung: Blaich und Delugan | Illiz Architektur | Kirsch ZT Gmbh
  • Baubeginn: Herbst 2025
  • Bezugstermin: Herbst 2028

(Alle Angaben vorbehaltlich Änderungen)

Nähere Informationen zum Projekt:

  • Anzahl der Wohnungen: 101 geförderte Mietwohnungen
  • Förderung: nach § 12 WWFSG (Miete)
  • Kosten pro m² durchschnittlich:
  • Eigenmittel: € 60,00
  • monatl. Belastung: ab € 9,33
  • Durchschnittliche Kosten KFZ-Abstellplatz:
  • Eigenmittel: € 0,00
  • monatl. Belastung: € 92,00
  •  
2748_1_Projektbild3.jpg

Im Entwicklungsgebiet „In der Wiesen“ im Bezirksteil Erlaa des 23. Wiener Bezirkes entsteht ein rund 9,6 ha großes Stadtquartier mit rund 1.250 geförderten Wohneinheiten. Auf insgesamt sechs Bauplätzen werden Projekte mit besonderen Schwerpunktthemen in Bezug auf Sport und Bewegung, klimafreundliche Quartiersplanung, innovative und leistbare Wohnmodelle für Alleinerziehende sowie Arbeiten im Home-Office realisiert. Mit einer bauplatz-
übergreifenden Quartiersentwicklung sowie einem breiten Qualitätsanspruch durch das 4-Säulen-Modell (Ökonomie, Soziale Nachhaltigkeit, Architektur und Ökologie) wird die Lebensqualität der Bewohner*innen noch stärker in den Mittelpunkt gerückt.

Hinweis zu den Kosten:
Bei diesen Wohnungen ist zusätzlich eine Superförderung möglich!

WOHNEN

  • Wohnhaus:
    - das innovative Neubauprojekt in Zusammenarbeit zwischen den Bauträgern NEUES LEBEN und WBV-GPA befindet sich auf Bauplatz 3 an der bestehenden Meischlgasse in unmittelbarer Nähe zur U-Bahn-Station U6 „Erlaaer-Straße“ (ca. 5 min Fußweg)
    - das Projekt besteht aus 10 Baukörpern unterschiedlicher Typologie (L-förmig und Punkthäuser) sowie einer überhöhten Erdgeschoßzone
    - die Leitidee ist es, eine leistbare, nachhaltige und klimaresiliente Nachbarschaft für heutige und zukünftige Generationen zu gestalten
    - es werden insgesamt 404 geförderte Wohnungen realisiert. 202 dieser Wohnungen werden nach dem SMART-Wohnbauprogramm mit Superförderung umgesetzt
    - Photovoltaikanlage zur regenerativen Stromerzeugung
    - Heizung und Warmwasser mittels Wärmepumpen
    - klimaneutrale Temperierung im Sommer über Bauteilaktivierung
    - Fassadenbegrünung, außenliegender Sonnenschutz und Regenwassermanagement sorgen dafür, die Folgen des Klimawandels erträglicher zu gestalten
    - Hochbeete auf den Dächern für gemeinschaftliches Gärtnern
    - Förderung der Fauna durch biodiverse Bepflanzung im gesamten Areal
    - die Stiegenhäuser und die Erschließungsgänge sind barrierefrei und werden natürlich belichtet
    - quartiersübergreifend nutzbares Hallenbad
    - Mobility Point mit Werkstatt für ein radfahrfreundliches Quartier
    - Quartiershaus als Treffpunkt der Gemeinschaft
    - Wohneinheiten für Housing-First und Alleinerzieher*innen (Vergabe über Neunerimmo und Caritas)
    - MA 11 Krisenzentrum
    - Garconierverbund für Menschen mit Behinderung (Vergabe über Verein Lebensart)
    - Baugruppe WaLeWi mit Clusterwohneinheiten und gemeinschaftlichem Wohnen (Vergabe über die Baugruppe)
    - Gartencafé und Hofladen als Generationentreffpunkt
    - Besiedlungsbegleitung durch ein Team der Caritas Stadtteilarbeit
    - Aufbau eines Trägervereins für Shared Office und Quartiershaus in Zusammenarbeit mit der Baugruppe WaLeWi

  • Wohnungsangebot:
    - 101 geförderte Mietwohnungen
    - 1-, 2-, 3- und 4-Zimmer-Wohnungen
    - Holzparkettböden in den Wohnräumen
    - Bauteilaktivierung sowie Fußbodenheizung
    - Wohnungseingangstüren der Sicherheitsklasse WK 3
    - Pilzverriegelungen und Sperroliven im Erdgeschoß
    - alle Wohnungen verfügen über eine private Freifläche

  • Private Freiräume:
    - Balkone
    - Loggien

  • Allgemeine Freiflächen und Gemeinschaftseinrichtungen:
    - ein Schwimmbad für alle Jahreszeiten mit 25m-Becken sowie Sauna, Fitness- und Besuchergalerie
    - Indoor-Sport-Raum
    - weitere Sportangebote für Erwachsene im Areal (Slackline, Fitnesskombi)
    - Wintergärten auf einzelnen Bauteilen mit Bezug zu den Dachterrassen für gemeinsames Gärtnern
    - Gemeinschaftshaus in Holzbauweise in der Quartiersmitte als Generationen-Treffpunkt
    - mehrere Waschküchen und Gemeinschaftsräume befinden sich in der Erdgeschoßzone
    - ein Kinder- und Jugendspielplatz ausgestattet mit Spielgeräten aus Holz befindet sich im zentralen Park
    - Naturpark Garten mit biodiverser Bepflanzung (Naschhecken und fruchttragende Pflanzen in den Freiräumen)

  • Abstellmöglichkeiten:
    - Kinderwagenabstellräume befinden sich im Erdgeschoß
    - ca. 890 Fahrradabstellplätze in versperrbaren Abstellräumen und ca. 110 Fahrradabstellplätze im Freien
    - ca. 290 PKW-Stellplätze in der 4-geschoßigen Tiefgarage

BEISPIELGRUNDRISSE

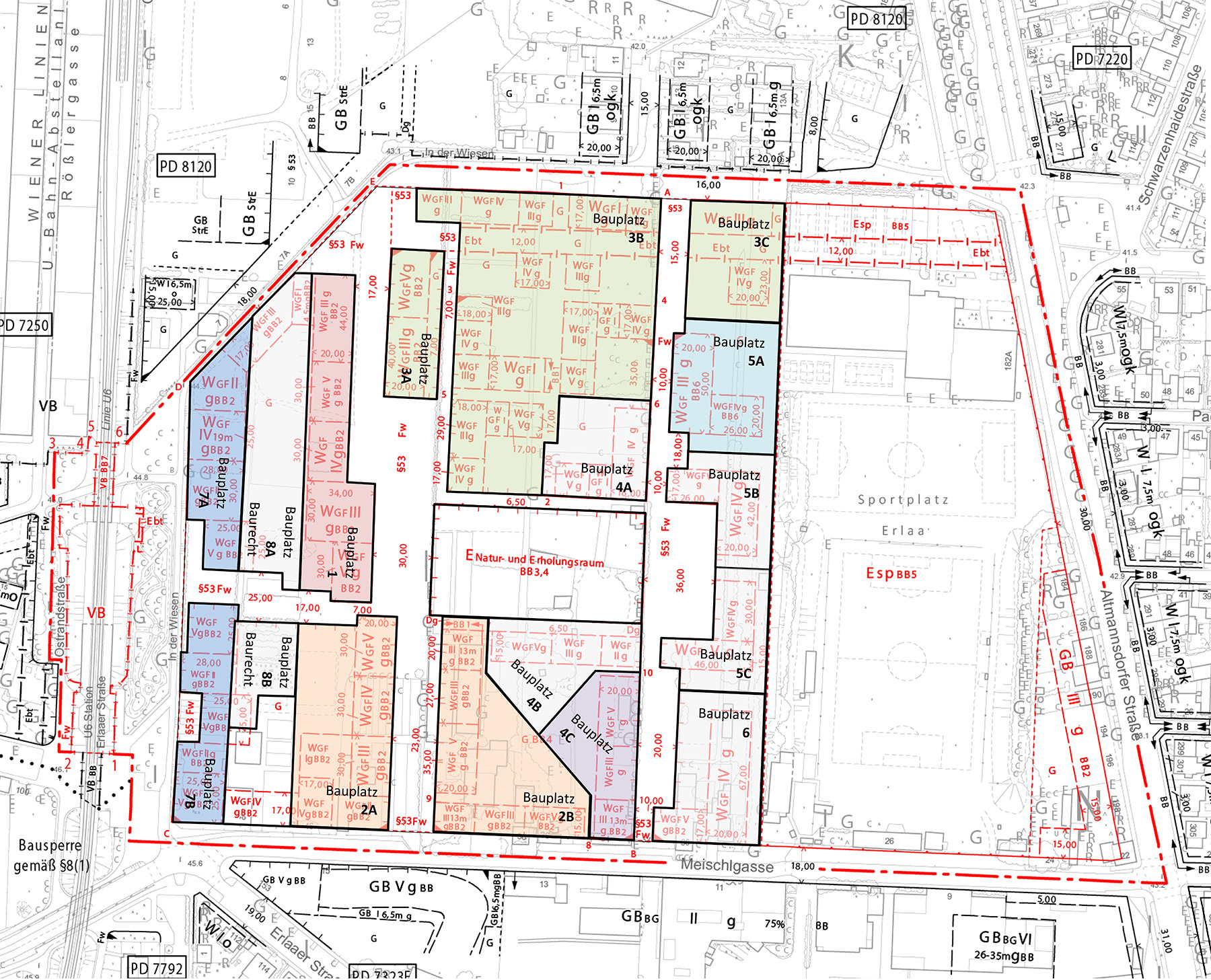
LAGE

  • Das Projekt befindet sich in unmittelbarer Nachbarschaft zum Sportplatz Erlaa und der U6 Station Erlaaer Straße
    - über Knoten Vösendorf Anschluss an die A2 und A21

  • Öffentliche Verkehrsanbindung:
    - U6/Erlaaer Straße
    - Lokalbahn/Neu Erlaa, zur SCS Vösendorf
    - Linie 61A sowie 64A, zur S-Bahn/Liesing bzw. Atzgersdorf

  • Lageplan

INFRASTRUKTUR

  • Nahbereich:
    - Einkaufsmöglichkeiten im Kaufpark Alterlaa
    - Geschäfte aller Art im Ortskern von Neuerlaa
    - Einkaufszentrum Riverside
    - Shopping City Süd
    - div. Ärzt*innen/Apotheken

  • Schulen:
    - Volksschule und Mittelschule, Carlbergergasse 72
    - Volksschule, Erlaaer Straße 74
    - Volksschule, Erlaaer Schleife 2
    - Neue Mittelschule, Anton-Baumgartner-Straße 119
    - Mittelschule „Bildungscampus Atzgersdorf“, Breitenfurter Straße 170
    - Bundesgymnasium und BRG, Anton-Baumgartner-Straße 123
    - Polytechnische Schule, Anton-Baumgartner-Straße 44

  • Kindergärten:
    - Kindergarten der Stadt Wien, Welingergasse 2
    - Kindergarten der Stadt Wien, Calvigasse 4
    - Kindergarten der Stadt Wien, Putzendoplergasse 10
    - Kindergarten der Stadt Wien, Romy-Schneider-Gasse 3
    - Privater Kindergarten „Casa Kindergarten Erlaa“, Meischlgasse 15/6
    - Privater Kindergarten „Österreichische Kinderfreunde“, Helene-Thimig-Weg 11

  • Freizeit:
    - Parkanlage Alma-Seidler-Weg
    - Better Tennis Center Alt Erlaa
    - Sporthalle Liesing
    - Höpflerbad
    - Draschepark
    - PaN-Park
    - Fridtjof-Nansen-Park
    - Schokomuseum
    - SCS Vösendorf
    - Erholungsgebiet Kellerberg Liesing
    - Stadtwanderweg 6 - Zugberg - Maurer Wald
    - Lainzer Tiergarten
    - Heurigenorte in Atzgersdorf und Mauer
Zurück zum Seitenanfang