Zum Hauptinhalt springen

1100, Kurbadstraße - BAG 1
Bauträger: GEWOG Gemeinnützige Wohnungsbau Ges.m.b.H.

  • Planung: g.o.y.a. Ziviltechniker Ges.m.b.H. & wup ZT GmbH
  • Baubeginn: Sommer 2026
  • Bezugstermin: Sommer 2028

(Alle Angaben vorbehaltlich Änderungen)

Nähere Informationen zum Projekt:

  • Anzahl der Wohnungen: 63 geförderte Mietwohnungen
  • Förderung: nach § 12 WWFSG (Miete)
  • Kosten pro m² durchschnittlich:
  • Eigenmittel: € 82,65
  • monatl. Belastung: ab € 10,73
  • Durchschnittliche Kosten KFZ-Abstellplatz:
  • Eigenmittel: € 0,00
  • monatl. Belastung: € 105,00
  •  
2713_1Projektbild.jpg

“Klimafit leben an der U1“
Im Rahmen eines kooperativen Planungsverfahrens entsteht in der Kurbadstraße in unmittelbarer Nähe zur Station U1/Oberlaa ein Entwicklungsgebiet mit insgesamt acht Bauplätzen. Wesentliche Elemente sind eine gemeinsame Freiraumplanung, das ambitionierte Konzept zur Nachbarschaftskooperation mit Schwerpunkt auf soziale Nachhaltigkeit sowie eine autofreie Siedlung mit bauplatzübergreifender Sammelgarage. Das neue Quartier am Kurpark in Oberlaa soll zu einem Vorzeigemodell eines urbanen und klimafitten Quartiers entwickelt werden.

WOHNEN

  • Wohnhaus:
    - Auf dem Bauplatz 1 werden vom Bauträger GEWOG verteilt auf 4 bis zu achtgeschossige Baukörper 127 geförderte Mietwohnungen errichtet. 64 dieser Wohnungen werden nach dem SMART-Wohnbauprogramm mit Superförderung umgesetzt.
    - Bauteile aus Stampflehm sorgen für ein wohliges Raum- und Wohnklima
    - Heizung und Warmwasser mittels Wärmepumpen und Tiefensonden
    - Photovoltaikanlage zur regenerativen Stromerzeugung
    - allseitige Fassadenbegrünung
    - intensiv begrünte Dachflächen dienen dem nahrhaften Quartier als Produktionsfläche für die landwirtschaftliche Selbstversorgung
    - zentral umfasster Hauptplatz als attraktiver Aufenthaltsbereich für die Bewohner*innen
    - Grätzlhaus als zentrales Gebäude dient u.a. zur Kulturvermittlung für Jung und Alt
    - Nahversorger und Ärzt*innenzentrum gleich nebenan
    - autofreie Flaniermeile mit Wien-Mobil- und Radservicestation (Car-Sharing, Leih- und Lastenräder)
    - Infostelle und Paketbox
    - naturnahe Lage mit direkter U-Bahnanbindung durch die U1 (ca. 5 min Fußweg)
    - Mitbestimmungskonzept und Besiedelungsbegleitung (lokaler Tauschkreis für Produkte und einfache Dienstleistungen, Club der Generationen für Jung und Alt, etc.)
    - Kooperation mit sozialen Trägern (VAMED, Caritas, „Zukunftshof“ für urbane Landwirtschaft)

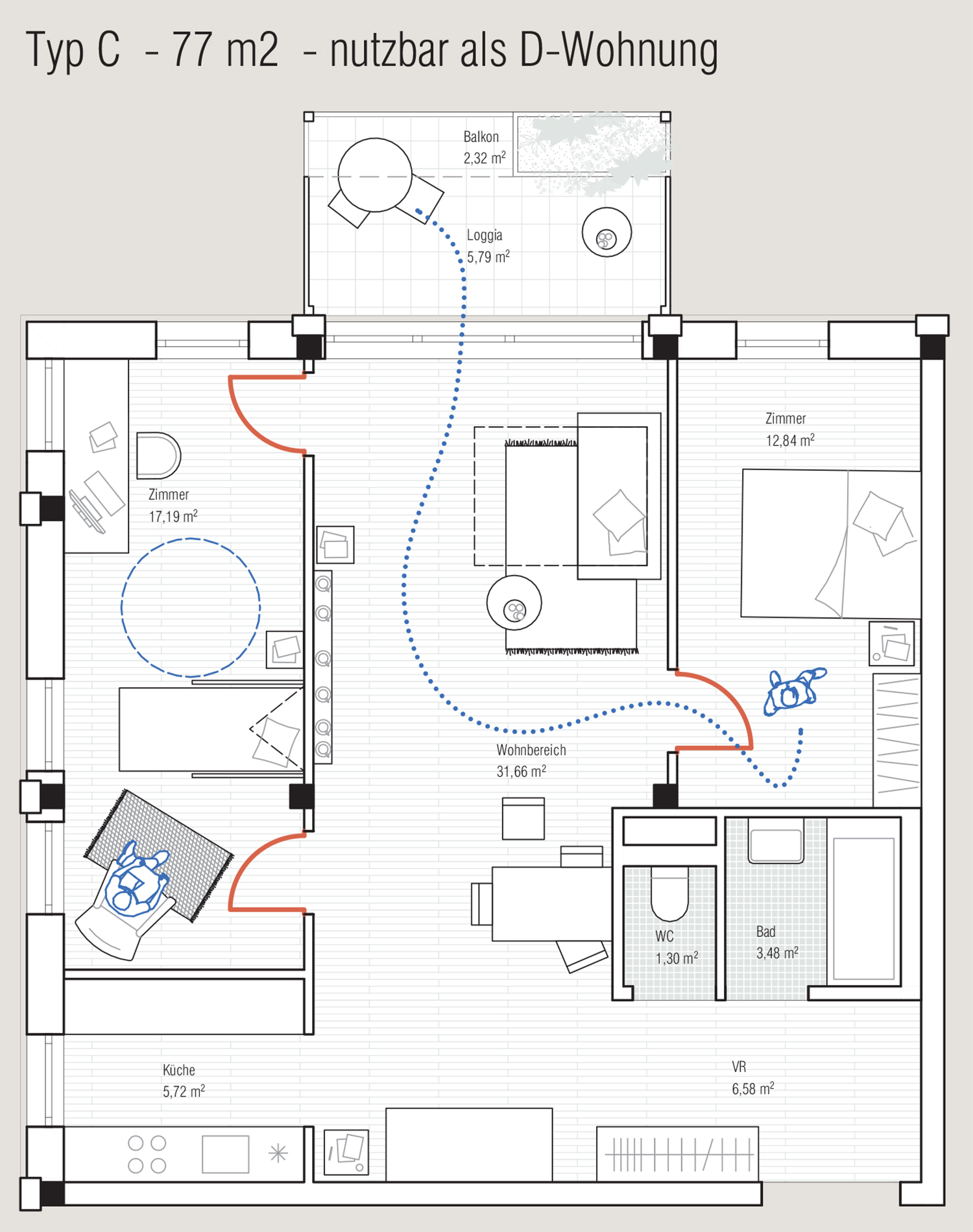
  • Wohnungsangebot:
    - 63 geförderte Mietwohnungen
    - 1-, 2-, 3- und 4-Zimmer-Wohnungen
    - große Auswahl an unterschiedlichen & kompakten Grundrissen
    - Laminatböden in den Wohnräumen
    - Wohnungseingangstüren der Sicherheitsklasse WK 3
    - alle Wohnungen verfügen über eine private Freifläche

  • Private Freiräume:
    - Balkone
    - Loggien

  • Allgemeine Freiflächen und Gemeinschaftseinrichtungen:
    - zentral vor dem Hauptplatz in der Erdgeschoß-Zone gelegener Gemeinschaftsraum mit vorgelagerter tw. überdachter Gemeinschaftsterrasse als quartiersübergreifender Veranstaltungsraum
    - Kleinkinderspiel direkt anschließend an Gemeinschaftsterrasse
    - Balancierhölzer und Sitzgelegenheiten in der Wiese
    - Aufenthalts- und Wasserspielflächen, Schattenbäume
    - künstliche Geysire und Fumarole in den Freiflächen
    - Senior*innenturnen und Schach
    - überdachter Ballspielbereich
    - beschattete Spiel- und Aufenthaltsflächen auf Gemeinschaftsdächern
    - gemeinschaftlich organisierte Agrarflächen am Dach (hauptsächlich über dem Nahversorger im 1. OG und jeweils auch im 6. OG bei den anderen Gebäuden)
    - Generationenclub + Jugendraum im EG
    - Mobility Point: 1 Radstation mit ca. 20 Docks bzw. 10 Leih-Fahrrädern sowie 2 E-Lastenräder auf Bauplatz 1 angrenzend an die Flaniermeile, 2 weitere E-Lastenräder sind auf Bauplatz 5 vorgesehen

  • Abstellmöglichkeiten:
    - leicht zugängliche Fahrrad- und Kinderwagenabstellräume in der EG-Zone
    - insgesamt ca. 310 Fahrradabstellplätze, davon ca. 270 im Innenbereich
    - ca. 70 PKW-Stellplätze in der zweigeschossigen Tiefgarage unterhalb des Nahversorgers

LAGE

  • Direkt beim Kurpark Oberlaa und der Therme Wien, nördlich vom Liesingbach in Rothneusiedl an der Grenze zu Oberlaa
    - Anschluss an die S16 über die Oberlaaer Straße

  • Öffentliche Verkehrsanbindung:
    - U1/Oberlaa
    - Bus-Linien 67E und 68B unter anderem Richtung Reumannplatz
    - Bus-Linie 70A Richtung Kledering Bahnhof (S60)
    - Bus 271 zur Schnellbahn, zum Kurzentrum und zur U1/Reumannplatz
    - Bus-Linie 17A Richtung Inzersdorf

  • Lageplan

INFRASTRUKTUR

  • Nahbereich:
    - diverse Einkaufsmöglichkeiten in der Umgebung sowie in der Favoritenstraße
    - Kurkonditorei Oberlaa
    - Supermarkt als Nahversorger
    - Einkaufszentrum „Hanssonzentrum“
    - Wienerberg City
    - Shopping City Süd
    - Ärztezentrum/Kur-Apotheke Oberlaa
    - Rheuma-Zentrum Wien-Oberlaa
    - Klinik Favoriten

  • Schulen:
    - öffentliche Volksschule, Oberlaaer Platz 1
    - Ganztags Volksschule, Grundäckergasse 14
    - Volksschule und Neue Mittelschule, Wendstattgasse 3
    - Bundesrealgymnasium, Pichelmayergasse 1
    - Bundesrealgymnasium, Ludwig-von-Höhnel-Gasse 17-19
    - FH Campus Wien, Favoritenstraße 226 (nähe Verteilerkreis)

  • Kindergärten:
    - Kindergarten der Stadt Wien, Grundäckergasse 20
    - Kindergarten der Stadt Wien, Franzosenweg 23
    - Kindergarten der Stadt Wien, Wendstattgasse 4a
    - privater Kindergarten „Österreichische Kinderfreunde“, Fontanastraße 1
    - privater Kindergarten „Österreichische Kinderfreunde“, Franz-Koci-Straße 4/7

  • Freizeit:
    - Erholungsgebiet Kurpark Oberlaa
    - Erholungsgebiet Laaerwald
    - Therme Wien
    - Freibad „Laaerbergbad“
    - Indoorspielplatz FUN 4 KIDS
    - Liesingbach
    - Rad- und Wanderwege
    - diverse Heurigen
Zurück zum Seitenanfang