Zum Hauptinhalt springen

1220, Am Rain 5 - Superförderung
Bauträger: BAUHILFE Gemeinnützige Gesellschaft m.b.H.

  • Planung: Dietrich I Untertrifaller
  • Baubeginn: Sommer 2025
  • Bezugstermin: Sommer 2027

(Alle Angaben vorbehaltlich Änderungen)

Nähere Informationen zum Projekt:

  • Anzahl der Wohnungen: 17 geförderte Mietwohnungen
  • Förderung: nach § 12 WWFSG (Miete)
  • Kosten pro m² durchschnittlich:
  • Eigenmittel: € 82,81
  • monatl. Belastung: ab € 11,91
  • Durchschnittliche Kosten KFZ-Abstellplatz:
  • Eigenmittel: € 1.500,00
  • monatl. Belastung: € 65,00
  •  
2697_1Projektbild.jpg

Bei diesen Wohnungen ist eine Superförderung möglich!

WOHNEN

  • Wohnhaus:
    - das Neubauprojekt stellt den nördlichen Teil eines bauplatzübergreifenden Gemeinschaftsprojekts am Rautenweg dar und umfasst 100 Wohnungen, wovon 17 Mietwohnungen mit „Superförderung“ und 51 Wohnungen nach dem SMART-Wohnbauprogramm mit „Superförderung“ umgesetzt werden
    - es besteht aus 5 entlang der angrenzenden Einfamilienhausstruktur im Westen und dem zukünftig angrenzenden Park im Osten angeordnete 2-4 Geschossige und zueinander versetzt stufenartige Baukörper
    - durch die Vis-A-Vis Gruppierung der Gebäude, sind die Stiegenhäuser über alle Geschosse natürlich belichtet
    - die Wärmeversorgung und Warmwasser-Bereitung erfolgt ausschließlich durch eine hauseigene Wärmepumpanlage, wobei Grundwasser als Wärmequelle verwendet wird und als Wärmeabgabeystem eine Bauteilaktivierung bzw. Fußbodenheizung vorgesehen ist, mit welcher im Sommer im „free cooling“-Betrieb gekühlt werden kann
    - Photovoltaikanlage zur regenerativen Stromerzeugung
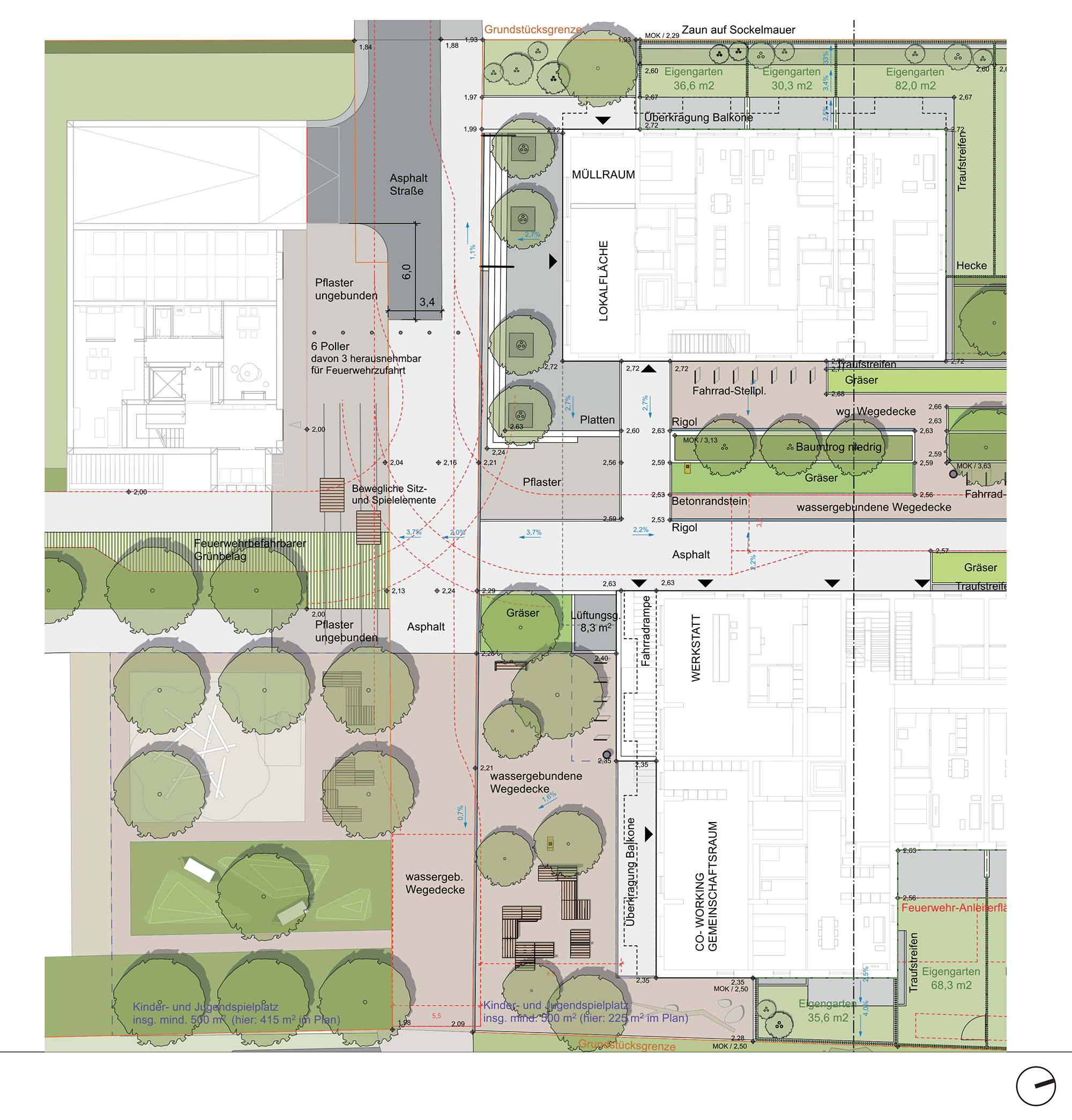
    - der mittig verlaufende grüne Anger mit öffentlichen Begegnungszonen und Kinderspielplätzen sowie seinen schattenspendenden Bäumen stellt das Herzstück der Anlage dar
    - begrünte Fassaden und Dachflächen
    - zukünftig angrenzender Park als naturnaher Bewegungs- und Erholungsraum
    - fünfgruppiger Kindergarten im EG
    - verschiedene Generationen und Lebenskonzepte können aufgrund unterschiedlicher Wohntypologien zusammenkommen
    - betreuter Besiedelungsprozess durch den Bauträger

  • Wohnungsangebot:
    - 17 geförderte Mietwohnungen mit Superförderung
    - 1-, 2-, 3-, 4- und 5-Zimmer-Wohnungen
    - Laminatböden in den Wohnräumen
    - Laminatboden in 3 Dekoren wählbar
    - Fußbodenheizung
    - Wohnungseingangstüren der Sicherheitsklasse WK 3
    - alle Wohnungen verfügen über eine private Freifläche
    - kontrollierte Wohnraumlüftung

  • Private Freiräume:
    - Balkone
    - Loggien
    - Terrassen
    - Eigengärten

  • Allgemeine Freiflächen und Gemeinschaftseinrichtungen:
    - bauplatzübergreifender an der Straße „am Rain“ situierter Kinder- und Jugendspielplatz, ausgestattet mit Balancier- und Kletterspiel in unmittelbarer Nähe zum Co-Working Gemeinschaftsraum und der Werkstatt
    - Möglichkeit zum Gärtnern auf der vorgelagerten Gemeinschaftsterrasse
    - Kleinkinder-Sandspielplatz mit Sitzgelegenheiten in direkter Nähe zum Gemeinschaftsraum
    - Waschküche
    - „Rautenkiosk“ als offener Bücherschrank und Tauschbörse mit Sitzgelegenheiten
    - Liege und Sitzgelegenheiten in der Wiese im gesamten Verlauf des Angers

  • Abstellmöglichkeiten:
    - Kinderwagenabstellräume befinden sich im UG der jeweiligen Stiegenhäuser
    - insgesamt ca. 230 Fahrradabstellplätze
    - ca. 70 PKW-Stellplätze in der hauseigenen Tiefgarage

BEISPIELGRUNDRISSE

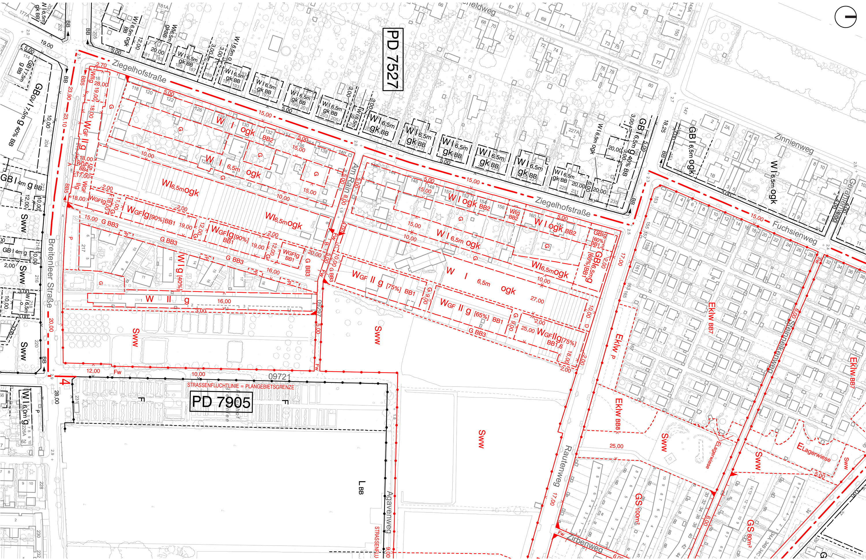
LAGE

  • Das Projekt liegt in der Nähe des Ortskerns von Breitenlee, zwischen der Breitenleerstraße und dem Rautenweg im Bereich der Ziegelhofstraße, östlich vom Gewerbepark Stadlau.

  • Öffentliche Verkehrsanbindung:
    - Linie 85A und 97A zur U2/S-Bahn/Hausfeldstraße
    - Linie 24A zur U1/Kagraner Platz bzw. zur S-Bahnhaltestelle Kagran

    Kurze Anbindung an die S2 bzw. A23 über den Rautenweg

  • Lageplan

INFRASTRUKTUR

  • Nahbereich:
    - Lebensmittelmärkte und Geschäfte des täglichen Bedarfs
    - Gewerbepark Stadlau
    - Donauzentrum
    - aspern Seestadt (Bildungseinrichtungen und Einkaufsmöglichkeiten)
    - Ärztezentrum u. Apotheke Breitenlee, Arnikaweg
    - Klink Donaustadt

  • Schulen:
    - öffentliche Volksschule, Schukowitzgasse 89
    - Ganztags-Volksschule, Pastinakweg 10
    - Ganztags-Volksschule, Pirquetgasse 6B
    - Volksschule und Mittelschule, Leopold-Kohr-Straße 6
    - Volksschule und Mittelschule „Campus“ Berresgasse, Scheedgasse 2
    - Ganztags-Realgymnasium 22, Contiweg 1
    - Ganztags-Gymnasium und Oberstufenrealgymnasium, Polgarstraße 24
    - Bundeshandelsakademie und Bundeshandelsschule Wien 22, Polgarstraße 24
    - Berufsschule für Einzelhandel und EDV-Kaufleute, Prinzgasse 3

  • Kindergärten:
    - Kindergarten der Stadt Wien, Oleandergasse 21
    - Kindergärten der Stadt Wien mit Hortgruppe, Schukowitzgasse 85, 87 und 89
    - Kindergarten der Stadt Wien, Kalmusweg 57
    - Pfarrkindergarten der Erzdiözese Wien, Breitenleer Straße 247
    - privater Kindergarten der Erzdiözese Wien, Berresgasse 3
    - privater Kindergarten „Kinderfreunde“, Gunertweg 3
    - privater Kindergarten „Kinderfreunde“, Ziegelhofstraße 32-34

  • Freizeit:
    - Stadtwanderweg 10
    - Feuerwehrspielplatz an der Neurisse
    - Erholungsgebiet Norbert-Scheed-Wald
    - Erholungsgebiet Lobau
    - Motorikpark 22
    - Trampolinpark - Cyberjump Wien 22
    - Sport & Fun Halle „Family Fun“
    - Blumengärten und Badeteich Hirschstetten
    - Kino- und Entertainmentcenter Cineplexx/Donauzentrum
Zurück zum Seitenanfang