Zum Hauptinhalt springen

1020, Nordbahnhof - BPL 3D
Bauträger: ÖVW - Österreichisches Volkswohnungswerk Gemeinnützige Ges.m.b.H.

  • Planung: Superblock
  • Baubeginn: Frühjahr 2026
  • Bezugstermin: Frühjahr 2028

(Alle Angaben vorbehaltlich Änderungen)

Nähere Informationen zum Projekt:

  • Anzahl der Wohnungen: 68 geförderte Mietwohnungen
  • Förderung: nach § 12 WWFSG (Miete)
  • Kosten pro m² durchschnittlich:
  • Eigenmittel: € 500,00
  • monatl. Belastung: ab € 10,48
  • Durchschnittliche Kosten KFZ-Abstellplatz:
  • Eigenmittel: € 0,00
  • monatl. Belastung: € 145,00
  •  
2736_1Projektbild.jpg

WOHNEN

  • Wohnhaus:
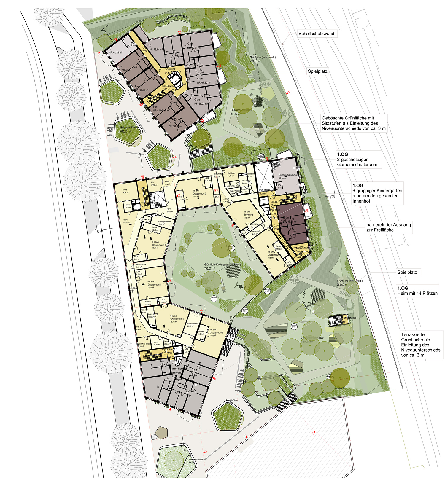
    - Die drei Gesellschaften ÖVW, PATRIA und WIENER errichten gemeinsam im Nordbahnviertel auf Bauplatz 3D ein Neubauprojekt mit insgesamt 254 Mietwohnungen. 170 Wohneinheiten werden mittels Superförderung realisiert, wobei hiervon 127 Wohnungen nach dem SMART-Wohnbauprogramm umgesetzt werden.
    - eigener 6-gruppiger Kindergarten im Erdgeschoß
    - Wohngemeinschaft der Immo Humana (Vergabe über Verein)
    - Versorgung mit Fernwärme
    - Photovoltaik-Anlage auf dem Dach
    - Dachbegrünung
    - bodengebundene Vertikalbegrünung mittels Rankseilsystem
    - Infotermine und Besiedlungsmanagement, Mitbestimmung bei Gemeinschaftsräumen bzw. -terrassen

  • Wohnungsangebot:
    - 68 geförderte Mietwohnungen
    - 1-, 2-, 3-, 4- und 5-Zimmer-Wohnungen
    - Laminatböden in den Wohnräumen
    - Kellerabteile im Erdgeschoß

  • Private Freiräume:
    - Balkone
    - Loggien
    - Terrassen

  • Allgemeine Freiflächen und Gemeinschaftseinrichtungen:
    - bauplatzübergreifende Gestaltung mit Quartiersplatz an der Nordbahnstraße als Ort der Begegnung und des Austauschs im Viertel
    - Sockelgarten mit hoher Grünqualität bietet großzügige Verweil- und Aufenthaltsflächen
    - Sitzbereiche mit angenehmer Beschattung als soziale Treffpunkte
    - attraktive Verweil-, Bewegungs- und Spielmöglichkeiten für Jung & Alt
    - zwei Dachterrassen im 4. Obergeschoß mit Anbaubeeten und Sitzmöglichkeiten
    - große, intensiv begrünten Grüninseln
    - attraktive, grüne Sitzstufen-Landschaft vermittelt zwischen Platzniveau und der höhergelegenen Grünebene
    - zweigeschoßiger Gemeinschaftsraum mit Sichtfenster zur Waschküche im Erdgeschoß; insgesamt drei Gemeinschaftsräume auf die Gebäude verteilt

  • Abstellmöglichkeiten:
    - 7 Fahrrad- und Kinderwagenabstellräume
    - insgesamt ca. 700 Fahrradabstellplätze am Bauplatz
    - ca. 100 PKW-Stellplätze in der hauseigenen Tiefgarage

BEISPIELGRUNDRISSE

LAGE

  • Zentral gelegen im neuen Nordbahnhofviertel, Nähe Handelskai, Donau und Praterstern

  • Öffentliche Verkehrsanbindung:
    - Verkehrsknoten Praterstern (U1, U2 und S-Bahn)
    - U1 Station Vorgartenstraße
    - Straßenbahnlinien O, 2
    - Straßenbahnlinie 12 (geplant)
    - Buslinien 11A, 11B, 82A

  • Lageplan

INFRASTRUKTUR

  • Nahbereich:
    - Einkaufszentrum Millennium City
    - Geschäfte des täglichen Bedarfs
    - Hannovermarkt, Karmelitermarkt, Vorgartenmarkt
    - div. Ärzt*innen/Apotheke

  • Schulen:
    - Bildungscampus Nordbahnhof Christine Nöstlinger, Taborstraße 120
    - Bildungscampus Getrude-Fröhlich-Sandner, Ernst-Melchior-Gasse 9
    - Volksschule, Wolfgang-Schmälzl-Gasse 13
    - Neue Mittelschule, Max-Winter-Platz 2
    - Neue Mittelschule, Pazmanitengasse 26
    - Sigmund-Freud-Gymnasium, Wohlmutstraße 3
    - FH Technikum Wien, Höchstädtplatz 5

  • Kindergärten:
    - Bildungscampus Nordbahnhof Christine Nöstlinger, Taborstraße 120
    - Bildungscampus Getrude-Fröhlich-Sandner, Ernst-Melchior-Gasse 9
    - öffentlicher Kindergarten, Engerthstraße 152A

  • Freizeit:
    - Freie Mitte Nordbahnviertel
    - Augarten
    - Familienbad Augarten
    - Spielplatz Venediger Au
    - Rudolf-Bednar-Park
    - Kino- und Entertainmentcenter Millennium City
    - Erholungsgebiete Alte Donau und Neue Donau
    - Donauinsel, Wiener Prater, Donaupark
Zurück zum Seitenanfang