Zum Hauptinhalt springen

1220, Aspernstraße 134 - Superförderung
Bauträger: HEIMAT ÖSTERREICH Gemeinn. Wohnungs- und Siedlungsges.m.b.H.

  • Planung: aap.architekten ZT-GmbH
  • Baubeginn: Herbst 2025
  • Bezugstermin: Frühjahr 2027

(Alle Angaben vorbehaltlich Änderungen)

Nähere Informationen zum Projekt:

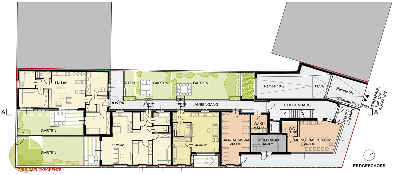
  • Anzahl der Wohnungen: 7 geförderte Mietwohnungen
  • Förderung: nach § 12 WWFSG (Miete)
  • Kosten pro m² durchschnittlich:
  • Eigenmittel: € 60,00
  • monatl. Belastung: ab € 11,00
  • Durchschnittliche Kosten KFZ-Abstellplatz:
  • Eigenmittel: € 0,00
  • monatl. Belastung: € 115,00
  •  
2770_1_Perspektive_Wohnhaus.jpg

Hinweis zu den Kosten:
Bei diesen Wohnungen ist eine Superförderung möglich!

WOHNEN

  • Wohnhaus:
    - Das Neubauprojekt wird vom Bauträger Heimat Österreich realisiert und besteht aus einem dreigeschoßigen Wohngebäude und einem dahinter liegenden Kinder- und Jugendgebäude.
    - Das Wohngebäude ist in konventioneller Ziegelbauweise mit Wärmedämmung und Putzfassade konzipiert und umfasst insgesamt 15 geförderte Wohneinheiten mit Superförderung, wovon 8 Wohnungen nach dem SMART-Wohnbauprogramm umgesetzt werden.
    - Gründach mit Photovoltaikanlage zur regenerativen Stromerzeugung
    - Wärmepumpen mit Tiefensonden zum Heizen im Winter und Temperieren im Sommer; Abgabe über Flächenheizsystem (Bauteilaktivierung)
    - Fassadenbegrünung beim Laubengang
    - Regenwassermanagement
    - Das Kinder- und Jugendgebäude beherbergt eine Pfadfinder*innen-Gruppe sowie einen Kindergarten als Erweiterung des angrenzenden 7-gruppigen Pfarrkindergartens St. Martin

  • Wohnungsangebot:
    - 7 geförderte Mietwohnungen
    - 2-, 3- und 4-Zimmer-Wohnungen
    - Laminat-Bodenbelag in den Wohnräumen
    - Wohnungseingangstüren der Sicherheitsklasse WK 3
    - versperrbare Fensterbeschläge bei Erdgeschoß- und Laubengangwohnungen
    - zweiseitig orientierte Wohnungen ermöglichen eine Querlüftung der Wohnung
    - alle Wohnungen verfügen über eine private Freifläche

  • Private Freiräume:
    - Balkone
    - Loggien
    - Terrassen
    - Gärten

  • Allgemeine Freiflächen und Gemeinschaftseinrichtungen:
    - der Gemeinschaftsraum mit Teeküche und barrierefreiem WC ist beim Haupteingang situiert und kann für Feste und gemeinschaftliche Aktivitäten genützt werden
    - daran anschließend befinden sich Waschküche, Fahrradraum und Kinderwagen-Abstellraum
    - öffentlich zugängliche Spielplätze befinden sich in der benachbarten Parkanlage

  • Abstellmöglichkeiten:
    - insgesamt ca. 40 Fahrradabstellplätze, davon befinden sich ca. 30 Abstellplätze in einem versperrbaren Raum im EG
    - insgesamt ca. 9 PKW-Abstellplätze in der hauseigenen Tiefgarage

LAGE

  • Das Wohnprojekt befindet sich in unmittelbarer Nachbarschaft zum Asperner Heldenplatz und in zehnminütiger Gehentfernung zur U2 Station „Aspernstraße“.
    - Anbindung an die A23 Südosttangente entweder über die Erzherzog-Karl-Straße oder über die Langobardenstraße

  • Öffentliche Verkehrsanbindung:
    - U2 Station „Aspernstraße“
    - Straßenbahnlinie 25
    - Buslinien 26A, 92A, 93A, 97A, 98A

  • Lageplan

INFRASTRUKTUR

  • Nahbereich:
    - Lebensmittelmärkte und Geschäfte des täglichen Bedarfs
    - Gewerbepark Stadlau
    - Donauzentrum
    - Seestadt Aspern (Bildungseinrichtungen und Einkaufsmöglichkeiten)
    - diverse Ärzt*innen und Apotheken in der näheren Umgebung (z.B. Apotheke „Zum Löwen von Aspern“, Groß Enzersdorfer Straße 4)
    - Klink Donaustadt

  • Schulen:
    - Volksschule, Asperner Heldenplatz 3
    - Volksschule, Oberdorfstraße 2
    - Ganztags-Volksschule, Hammerfestweg 1
    - Volksschule und Neue Mittelschule, Langobardenstraße 139
    - Ganztags-Mittelschule, Eibengasse 58
    - Neue Mittelschule, Plankenmaisstraße 30
    - Gymnasium u. Realgymnasium, Heustadelgasse 4
    - Ganztags-Gymnasium u. Realgymnasium, Contiweg 1
    - Ganztags-Gymnasium u. Realgymnasium, Maria-Trapp-Platz 5

  • Kindergärten:
    - öffentlicher Kindergarten, Benjowskigasse 2-6
    - öffentlicher Kindergarten, Langobardenstraße 176
    - öffentlicher Kindergarten, Sandefjordgasse 1
    - öffentlicher Kindergarten, Lavaterstraße 6/4
    - privater Kindergarten „Kleine Löwen von Aspern“, Siegesplatz 7
    - Pfarrkindergarten und Hort „St. Martin“, Asperner Heldenplatz 9

  • Freizeit:
    - Astrid-Lindgren-Park, Motorikpark 22
    - Trampolinpark - Cyberjump Wien 22
    - Sport & Fun Halle „Family Fun“, Kletterhalle Wien
    - Rad- und Wanderroute „Marchfeldkanal“
    - Blumengärten Hirschstetten, Nationalpark Donau-Auen und Naherholungsgebiet Lobau
    - Badeteich Hirschstetten, Gänsehäufel, Mühlwasser, Strandbäder Alte Donau, Donauinsel
    - Kino- und Entertainmentcenter Cineplexx, Donauzentrum
    - Autokino Center Wien Groß-Enzersdorf, sonntags Flohmarkt
    - Bezirksmuseum Aspern-Essling 1809
Zurück zum Seitenanfang