Zum Hauptinhalt springen

1210, Quartier "An der Schanze" - BPL E1 - Antonie-Lehr-Straße 18
Bauträger: FAMILIE Gemeinnützige Wohn- und Siedlungsgenossenschaft m.b.H.

  • Planung: ss|plus architektur ZT GmbH
  • Baubeginn: Herbst 2024
  • Bezugstermin: Sommer 2026

(Alle Angaben vorbehaltlich Änderungen)

Nähere Informationen zum Projekt:

  • Anzahl der Wohnungen: 95 geförderte Mietwohnungen
  • Förderung: nach § 12 WWFSG (Miete)
  • Kosten pro m² durchschnittlich:
  • Eigenmittel: € 64,77
  • monatl. Belastung: ab € 9,90
  • Durchschnittliche Kosten KFZ-Abstellplatz:
  • Eigenmittel: € 0,00
  • monatl. Belastung: € 90,00
  •  
2624_Projektbild_10_weiss.jpg

Mittels zweistufigem Bauträgerwettbewerb wurden zehn Bearbeitungsgebiete zur Realisierung empfohlen und bilden gemeinsam das neue Stadtquartier „An der Schanze“. Insgesamt sollen ca. 1.500 Wohnungen, ein Studierendenwohnheim, Grätzlcafés, bauplatzübergreifende Gemeinschaftseinrichtungen sowie ein Kindergarten auf dem Areal errichtet werden. Der Fokus liegt insbesondere auf leistbarem Wohnraum mit hoher Wohnqualität sowie der Unterstützung von Alleinerziehenden.

WOHNEN

  • Wohnhaus:
    - das Neubauprojekt „sChanze“ wird auf den Bauplätzen E1 und E2 von den Bauträgern Familie und Stumpf realisiert und besteht aus drei Baukörpern
    - insgesamt werden 214 geförderte Mietwohnungen, davon 73 Wohnungen nach den SMART-Richtlinien mit Superförderung, errichtet
    - Zugang über drei natürlich belichtete Stiegenhäuser
    - auf dem Bauplatz E1 werden 144 geförderte Mietwohnungen, davon 49 Wohnungen nach den SMART-Richtlinien mit Superförderung, errichtet
    - Geschäftsflächen, u.a. Arztpraxen, Apotheke
    - „Raumteiler“ für Ein-Personen-Unternehmen und Kleingewerbe
    - „Supergreißler“ als Seele des Quartiers – Hausbetreuer*in, Ansprechpartner*in für Raumteiler, Nachbarschaftsbetreuung sowie vielfältige Angebote von alltagserleichternden Dienstleistungen
    - Wohncluster für Senior*innen und Alleinerziehende
    - bauplatzübergreifendes Mobilitätskonzept auf Bauplatz I und D geplant (Leihräder, Fahrradboxen, Reparaturstelle für Fahrräder, Aufladestation für E-Autos, etc.)
    - die begrünten Fassaden sowie die extensive Dachbegrünung tragen zur Verbesserung des Mikroklimas bei
    - Massivbauweise

  • Wohnungsangebot:
    - 95 geförderte Mietwohnungen
    - 2-, 3- und 4-Zimmer-Wohnungen
    - Sonderwunschausstattung gegen fixen Aufpreis in Abhängigkeit vom Baufortschritt
    - Vorbereitung für Videogegensprechanlage
    - Holzparkettböden in den Wohnräumen
    - Ausstattung mit dreifachverglasten Holz-Alu-Fenster
    - Wohnungseingangstüren in RC3-Ausführung
    - dezentrale Wohnraumlüftung mit Abluftventilatoren und schallgedämmter Nachströmöffnung vom Freien in die Aufenthaltsräume

  • Private Freiräume:
    - Balkone
    - Loggien
    - Terrassen

  • Allgemeine Freiflächen und Gemeinschaftseinrichtungen:
    - vier multifunktionale Gemeinschaftsräume
    - ein Kinderspielraum
    - Gemeinschaftsterrassen mit Möglichkeit für Urban Gardening und Sitzgelegenheiten
    - Einsatz des Nuki-Online Schließsystems bei den Hauseingängen sowie digitale Zugangssystem bei den Gemeinschaftsräumen (Zutrittsmanagement via Smartphone)
    - digitales schwarzes Brett in den Eingangsfoyers (Bespielung mit Öffi-Fahrzeiten in Echtzeit, etc.)
    - bauplatzübergreifender Kleinkinder-/Kinder- und Jugendspielplatz mit Sandspiel, Pavillon, etc.
    - belebter Quartiersplatz als Ort der Begegnung
    - zwei Waschküchen
    - zwei Gästewohnungen (auch als Notwohnungen nutzbar)
    - Besiedlungsmanagement geplant

  • Abstellmöglichkeiten:
    - neun Fahrrad- und Kinderwagenabstellräume
    - insgesamt ca. 349 Fahrradabstellplätze am Bauplatz E1
    - 64 PKW-Stellplätze in einer bauplatzübergreifenden Tiefgarage
    - Vorbereitung für E-Mobilität

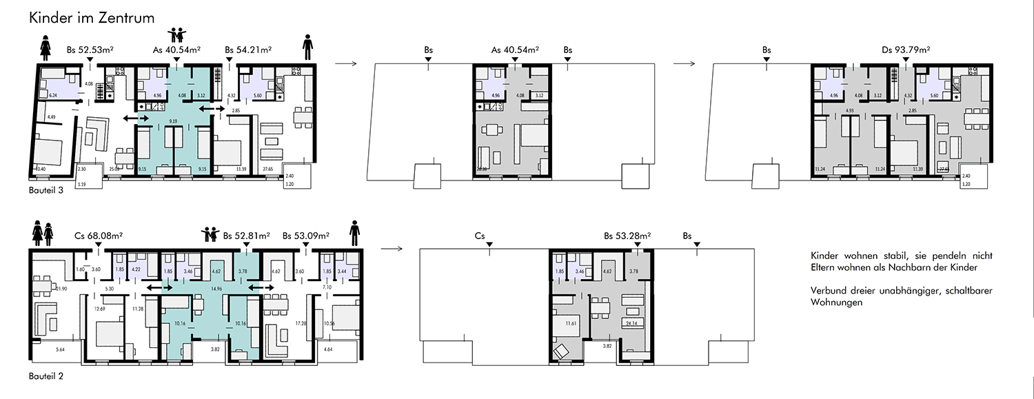
BEISPIELGRUNDRISSE

- kompakte und flächeneffiziente Grundrisse, leicht anpassbar auf geänderte Lebensumstände
- Innovative Grundrisslösungen für Alleinerziehende sowie für getrennt Erziehende
- alltagstauglich und mit Normmöbel möblierbar

LAGE

  • Das Wohnprojekt entsteht angrenzend an den 22. Bezirk, in unmittelbarer Nähe zum Zentrum Kagran sowie dem Erholungsgebiet Obere Alte Donau
    - Anschluss an die A23 über die Donaustadtstraße/Erzherzog-Karl-Straße

  • Öffentliche Verkehrsanbindung:
    - Buslinie 27A in Richtung Kagran (U1) bzw. Hermann-Gebauer-Straße
    - Straßenbahnlinie 25 in Richtung Verkehrsknoten Floridsdorf (S-Bahn und U6) und Donauspital
    - Straßenbahn- sowie Busstation direkt vor dem neuen Areal geplant

  • Lageplan

INFRASTRUKTUR

  • Nahbereich:
    - Donau Zentrum
    - Gewerbepark Stadlau
    - Shopping Center Nord
    - Klinik Floridsdorf
    - Donauspital
    - div. Ärzte/Apotheken

  • Schulen:
    - Volksschule, Prandaugasse 5
    - Volksschule, Donaufelderstraße 77
    - Volksschule „Campus Plus“, Attemsgasse 22
    - Neue Mittelschule, Kinzerplatz 9
    - Neue Mittelschule, Anton-Sattler-Gasse 93
    - Polytechnische Schule, 22., Wintzingerodestraße 1-3
    - Gymnasium, Bernoullistraße 3
    - Humanberufliche Schule, Firnbergplatz 1
    - Veterinärmedizinische Universität, Veterinärplatz 1

  • Kindergärten:
    - 6-gruppiger Kindergarten am Nachbarbauplatz G2 geplant
    - privater Kindergarten „Kindercompany“, Prandaugasse 3
    - Kindergarten der Stadt Wien, Attemsgasse 22
    - Kindergarten der Stadt Wien, Fultonstraße 5-11

  • Freizeit:
    - Erste Bank Arena
    - Kino- und Entertainmentcenter Donauplex
    - Erholungsgebiete Alte Donau, Neue Donau, Donaupark
    - Floridsdorfer Wasserpark
    - Kombibad Donaustadt
    - Strandbad Alte Donau
    - Floridsdorfer Bad - Hallenbad
Zurück zum Seitenanfang