Zum Hauptinhalt springen

1220, Oberes Hausfeld - BPL F1 - Superförderung
Bauträger: ÖVW - Österreichisches Volkswohnungswerk Gemeinnützige Ges.m.b.H.

  • Planung: SUPERBLOCK ZT GmbH
  • Baubeginn: Anfang 2025
  • Bezugstermin: Anfang 2027

(Alle Angaben vorbehaltlich Änderungen)

Nähere Informationen zum Projekt:

  • Anzahl der Wohnungen: 46 geförderte Mietwohnungen
  • Förderung: nach § 12 WWFSG (Miete)
  • Kosten pro m² durchschnittlich:
  • Eigenmittel: € 93,79
  • monatl. Belastung: ab € 10,97
  • Durchschnittliche Kosten KFZ-Abstellplatz:
  • Eigenmittel: € 0,00
  • monatl. Belastung: € 105,00
  •  
2708_1_1Projektbild.jpg

Urbanes und autofreies Quartier in der Wiener Donaustadt

Gleich neben der U2-Linie situiert, entsteht in Zusammenarbeit mit mehreren Projektpartner*innen ein neuer, klimagerechter Stadtteil, der künftig Platz für ca. 3.800 Wohnungen bieten wird. Autofreie Zonen, zwei große Parkgaragen und die Schaffung attraktiver und belebter Erdgeschoßzonen runden das Projekt ab. Bei der Quartiersgestaltung wird vor allem auf zahlreiche Grünflächen Rücksicht genommen.

WOHNEN

  • Wohnhaus:
    - das Projekt stellt den im Quartier „Oberes Hausfeld“ gelegenen mittleren Teil eines bauplatzübergreifenden Gemeinschaftsprojekts dar. Dieses besteht aus einer 3-geschossigen Sockelzone mit umlaufenden Arkadengang und darauf aufgesetzt, freistehende und zueinander versetzte Punktbaukörper in unterschiedlicher Höhe - „die Punkte am Hausfeld“
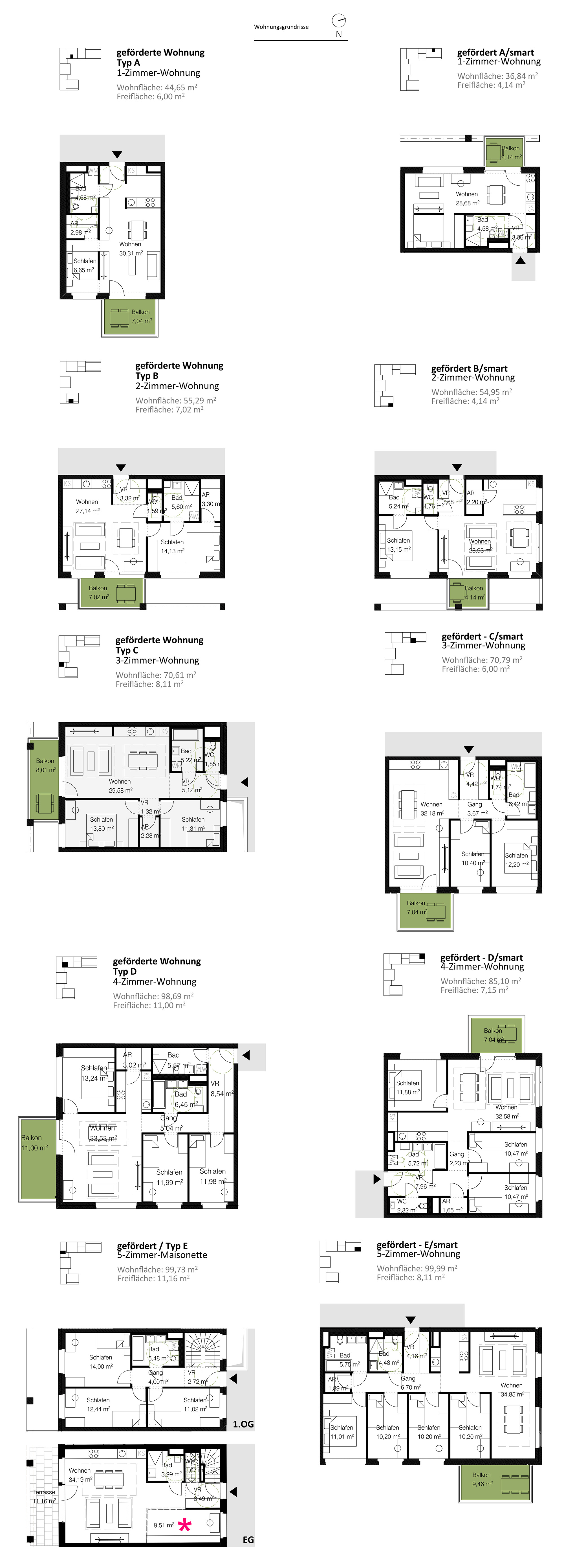
    - es werden 92 geförderten Wohnungen mit Superförderung errichtet, wovon 46 Wohnungen nach dem SMART-Wohnbauprogramm realisiert werden
    - weitere 73 freifinanzierte Wohnungen werden direkt über die Bauträger vergeben
    - Gewerbe- und Handelszone im Erdgeschoß
    - barrierefreie Wegverbindungen zu allen Gebäudezugängen und Gemeinschaftsräumen
    - die Stiegenhäuser werden natürlich belichtet
    - Energieversorgung mittels Tiefensonden und Wärmepumpe
    - Photovoltaikanlage zur regenerativen Stromerzeugung
    - begrünte Fassaden und Dachflächen
    - großer naturnaher begrünter Innenhof mit zahlreichen beschatteten Sitzmöglichkeiten
    - Besiedlungsbegleitung bis 1 Jahr nach Besiedlung durch den Bauträger
    - betreffend Ausstattung des Gemeinschaftsraums sind ebenfalls Infoveranstaltungen und in weiterer Folge Workshops zu ersten Umsetzungsschritten geplant

  • Wohnungsangebot:
    - 46 geförderte Mietwohnungen mit Superförderung
    - 1-, 2-, 3-, 4- und 5-Zimmer-Wohnungen
    - Laminatboden
    - Wohnungseingangstüren der Sicherheitsklasse WK 3
    - Fenster und Fenstertüren bei Wohnungen im EG mit sperrbaren Fenstergriffoliven und Pilzzapfen
    - alle Wohnungen verfügen über eine private Freifläche
    - kontrollierte Wohnraumlüftung

  • Private Freiräume:
    - Balkone
    - Terrassen
    - Eigengärten

  • Allgemeine Freiflächen und Gemeinschaftseinrichtungen:
    - großer erdgeschossiger zum Grätzlplatz hin orientierter multifunktionaler Gemeinschaftsraum mit WC, Küche und vorgelagerter Gemeinschaftsterrasse, welcher auch vom Innenhof aus zugänglich sein wird
    - die Waschküche ist direkt an den Gemeinschaftsraum angegliedert
    - bauplatzübergreifender hofseitiger Kinder- und Jugendspielplatz mit Spielhügel, Rutsche, Balancier-Elemente, etc.
    - Kleinkinderspielplatz mit Sonnensegel als Sonnenschutz, Sandkiste, Federwippe, etc.

  • Abstellmöglichkeiten:
    - Kinderwagenabstellräume befinden sich sowohl im Erdgeschoß in Eingangsnähe als auch im Untergeschoß
    - insgesamt ca. 430 Fahrradabstellplätze mit integrierter Werkstatt, hauptsächlich in absperrbaren Räumen im EG und Untergeschoß (über eine Fahrradrampe erreichbar) sowie teilweise im Freibereich situiert
    - ca. 110 PKW-Tiefgaragenstellplätze

BEISPIELGRUNDRISSE

LAGE

  • Das Wohnprojekt befindet sich in unmittelbarer Nähe zur U2 Station Hausfeldstraße. Die U2 Station „Oberes Hausfeld“ am Lina-Loos-Platz befindet sich derzeit noch in Bau.

  • Öffentliche Verkehrsanbindung:
    - Buslinien 26A, 84A, 85A, 93A, 95B, 97A, 98A
    - Straßenbahnlinie 26 und U2 Station „Hausfeldstraße“
    - U2 Station „Aspernstraße“

    Kurze Anbindung an die S2 bzw. A23 über die Erzherzog-Karl-Straße

  • Lageplan

INFRASTRUKTUR

  • Nahbereich:
    - Lebensmittelmärkte und Geschäfte des täglichen Bedarfs
    - Gewerbepark Stadlau
    - Donauzentrum
    - aspern Seestadt (Bildungseinrichtungen und Einkaufsmöglichkeiten)
    - diverse Ärzte und Apotheken in der näheren Umgebung (z.B. Apotheke „U2“, Wonkaplatz 3)
    - Klink Donaustadt

  • Schulen:
    - öffentliche Volksschule, Langobardenstraße 139
    - Ganztags-Volksschule, Wulzendorfstraße 1
    - öffentliche Volksschule, Hannah-Arendt-Platz 8 (Campus-Seestadt)
    - öffentliche Volksschule, Schrebergasse 39
    - Ganztags-Volksschule, Pirquetgasse 6B
    - Volksschule und Mittelschule „Campus“ Berresgasse, Scheedgasse 2
    - öffentliche Mittelschule, Langobardenstraße 139
    - Ganztags-Mittelschule, Eibengasse 58
    - öffentliche Mittelschule, Plankenmaisstraße 30
    - Gymnasium u. Realgymnasium, Heustadelgasse 4
    - Ganztags-Gymnasium u. Realgymnasium, Contiweg 1
    - Ganztags-Gymnasium und Oberstufenrealgymnasium, Polgarstraße 24
    - Bundeshandelsakademie und Bundeshandelsschule Wien 22, Polgarstraße 24
    - Berufsschule für Einzelhandel und EDV-Kaufleute, Prinzgasse 3

  • Kindergärten:
    - Kindergarten der Stadt Wien, Lavaterstraße 6/4
    - Kindergarten der Stadt Wien, Hagedornweg 2
    - Kindergarten der Stadt Wien, Am Heidjöchl 14
    - Kindergarten der Stadt Wien mit Heilpädagogische Familiengruppe, Scheedgasse 2
    - Kindergarten der Stadt Wien, Schrebergasse 38
    - Kindergarten der Stadt Wien, Hirschstettner Straße 119
    - Pfarrkindergarten der Erzdiözese Wien, Haberlandtgasse 14
    - privater Kindergarten „Kinderfreunde“, Maschlgasse 25-31
    - privater Kindergarten „Kinderfreunde“, Ziegelhofstraße 32-34

  • Freizeit:
    - Motorikpark 22
    - Trampolinpark - Cyberjump Wien 22
    - Sport & Fun Halle „Family Fun“
    - Kletterhalle Wien
    - Rad- und Wanderroute „Marchfeldkanal“
    - Blumengärten Hirschstetten, Nationalpark Donau-Auen und Naherholungsgebiet Lobau
    - Badeteich Hirschstetten, Gänsehäufel, Mühlwasser, Strandbäder Alte Donau, Donauinsel
    - Kino- und Entertainmentcenter Cineplexx, Donauzentrum
    - Autokino Center Wien Groß-Enzersdorf, sonntags Flohmarkt
Zurück zum Seitenanfang